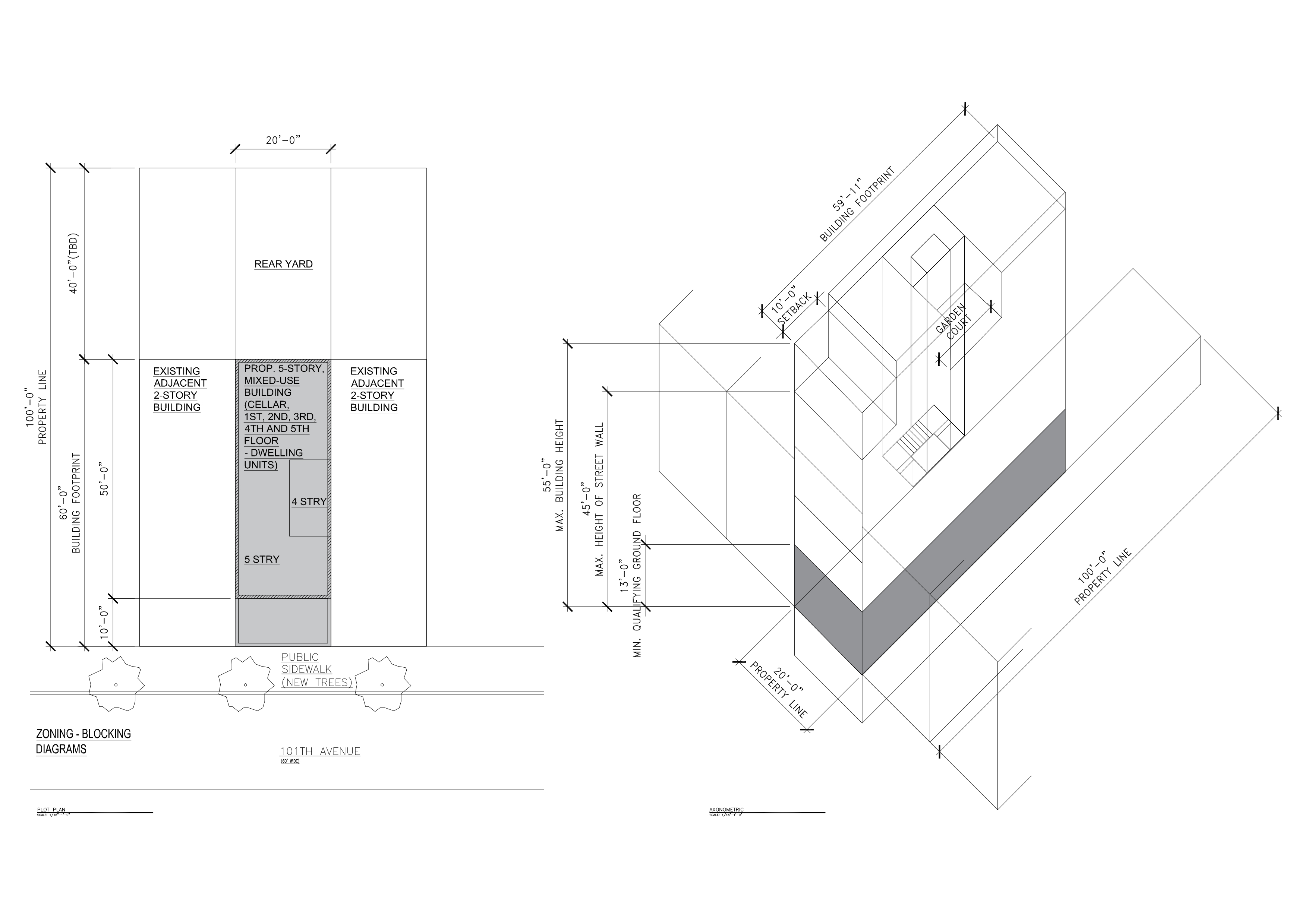
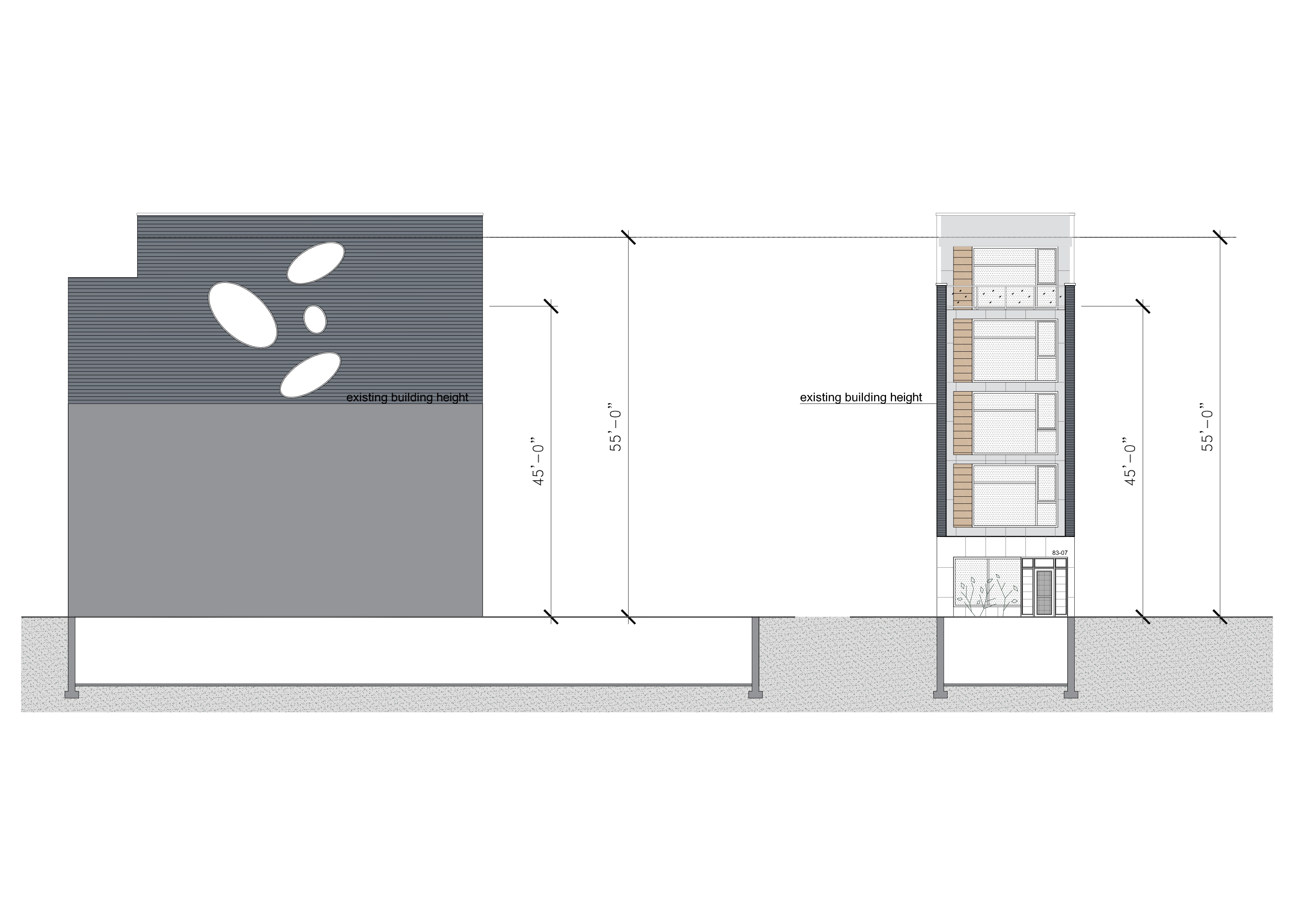
Share
Building New York
Building New York


